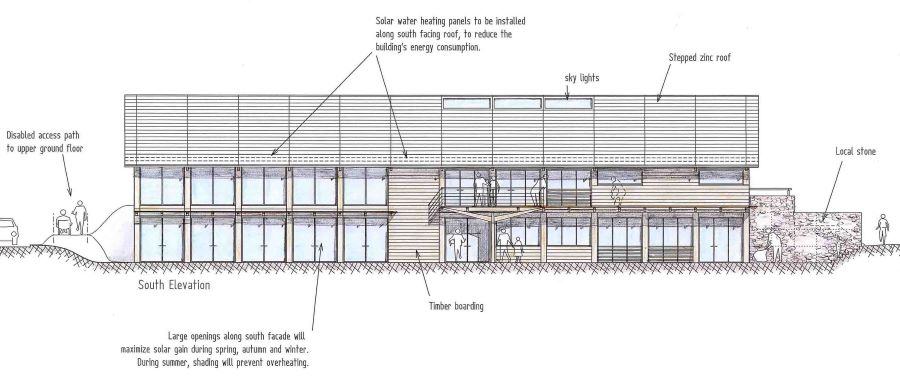
This design for a new community centre makes use of the path of the sun. Having highly glazed south façades allows the sun to heat the building, particularly in spring and autumn, but winter too.

Shading helps to prevent overheating in summer.

Reduce heat loss by earth sheltering to the north side of the building and having minimal openings on the north façade.

Timber frame construction allows a thick layer of insulation to the walls and roof, conserving heat energy.

Using durable materials and sourcing them as locally as possible can reduce lifetime carbon impact.
